Descrizione

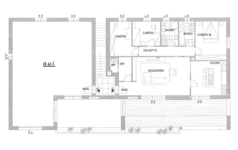
Cirimido : in contesto di solo 4 unità di recentissima costruzione proponiamo signorile e luminoso appartamento ad alto efficientamento energetico così composto : ingresso direttamente sull'ampio soggiorno ,cucina abitabile ,un disimpegno notte da cui si accede alla camera matrimoniale ,bagno e due camere singole .L' appartamento si completa con un ampio terrazzo di 33 mq completamente esposto a sud. L'immobile offre caratteristiche che rendono l'appartamento in classe energetica A4 quali impianto fotovoltaico da 5,2 kw ,2 pannelli per il solare termico ,serramenti in PVC complete di sistema oscurante e ribalta che garantisce isolamento termico e acustico ,impianto di ventilazione meccania ,impianto di domotica base che permette la funzione "spegni tutto " .
Pertinenziale all'appartamento un'autorimessa doppia in larghezza di 30 mq con basculante sezionale elettrica .
Immobile libero entro 8 mesi dal compromesso .


Caratteristiche principali

Stato Immobile
Ottimo
Grado
Signorile
Posizione
Centro
Panorama
Vista Aperta
Orientamento
Nord Est Sud
Lati Liberi
3
Arredi
Non Arredato
Riscaldamento
Autonomo
Accessori: Cancello Elettrico, Doppi Vetri, Impianto Fotovoltaico, Pannelli Solari

Mappa

via toti , Cirimido (CO)

Cookie preference