Descrizione

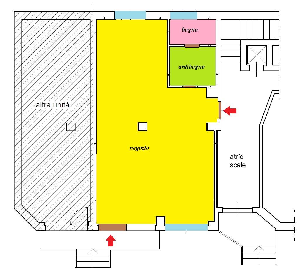
Luisago / Portichetto : nelle vicinaze dei primari servizi e nelle immediate vicinaze della stazione ferroviaria di Portichetto, proponiamo negozio di 60 mq posto al piano rialzato con due ampie vetrate fronte strada . Il negozio è composto da un unico locale con antibagno e bagno ed una cantina accessibile sempre dalla proprietà di 12 mq.
Il negozio attualmente è locato con scadenza 31 dicembre 2028


Caratteristiche principali

Stato Immobile
Ottimo
Grado
Signorile
Posizione
Centro

Mappa

via volta , Luisago (CO)

Cookie preference